
CD97TAR-15E/G series is an inferential, single-jet type, dry dial (5 digits)cold water meter ,with the lower magnet fitted directly to the fan wheel which is the only moving part submerged in water, therefore the meter is ideally suitable for operating with hard and scalling water with sand in suspension without the rapid deterioration of gears which in traditional designs are submerged in water.
SPECIALITY:
*The clockwork can be easily rotated over 360º for comfortable reading
*Magnetic shield structure, with which the water meter can not be influenced by outside magnetic fields.
*If replaced with the appropriate materials, it can be used for the hot water meter (the water temperature is above 90℃).
WORKING CONDITION:
*The max. admissible water pressure: 1.6MPa (16bar)
*Water temperature: up to 50℃
Maximum permissible error:
Between qt (included) and qs is ±2%;
Between qmin and qt (excluded) is ±5%.
NOTE: The technical data conform to ISO4064 standard, class B.
FLOW-ERROR CURVE
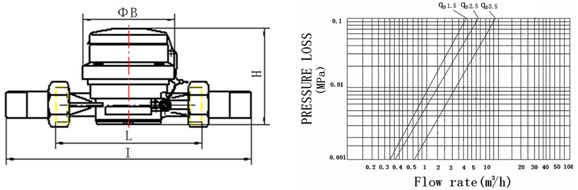
SPECIFICATION AND OVERALL DIMENSIONS
Description |
Unit |
Hydraulic data and dimensions |
Nominal size |
mm |
15 |
20 |
25 |
inch |
1/2 |
3/4 |
1 |
Overload flow-rate (qs) |
m3/h |
3 |
5 |
7 |
Permanent flow-rate (qp) |
m3/h |
1.5 |
2.5 |
3.5 |
Transitional flow-rate (qt) |
m3/h |
0.12 |
0.2 |
0.28 |
Minimum flow-rate (qmin) |
m3/h |
0.03 |
0.05 |
0.07 |
Max. reading |
m3 |
99999.9999 |
99999.9999 |
99999.9999 |
Min. reading |
m3 |
0.00005 |
0.00005 |
0.00005 |
Max. working pressure |
MPa |
1.6 |
1.6 |
1.6 |
ΔP at the qs |
MPa |
≤0.1 |
≤0.1 |
≤0.1 |
L |
mm |
110 |
130 |
160 |
I |
mm |
190 |
234 |
280 |
H |
mm |
86 |
86 |
113 |
B |
mm |
81 |
81 |
94 |
OVERALL DIMENSIONS PRESSURE LOSS CURVE
 |